Semesterlägenhet - 5 personer - Irrseeblick - 4893 - Zell Am Moos

5 personer

Översikt

Objektnr.: 532-201323
7 nätter
Från SEK 15 729,-
5 personer
Bostadsutrymme 70 m²
Soverum 2
Badrum 2
Internet
Icke-rökare
Husdjur 1
  • Erbjuder minisemester Ja
  • Avstånd affärer 500 m
  • Parabol/kabel TV Ja
  • Vattenutsikt Ja
  • Diskmaskin Ja

Beskrivning

Tyvärr finns inte denna beskrivning tillgänglig på Svenska. Se beskrivningen i Tyska eller se den maskinöversatta texten i Svenska.
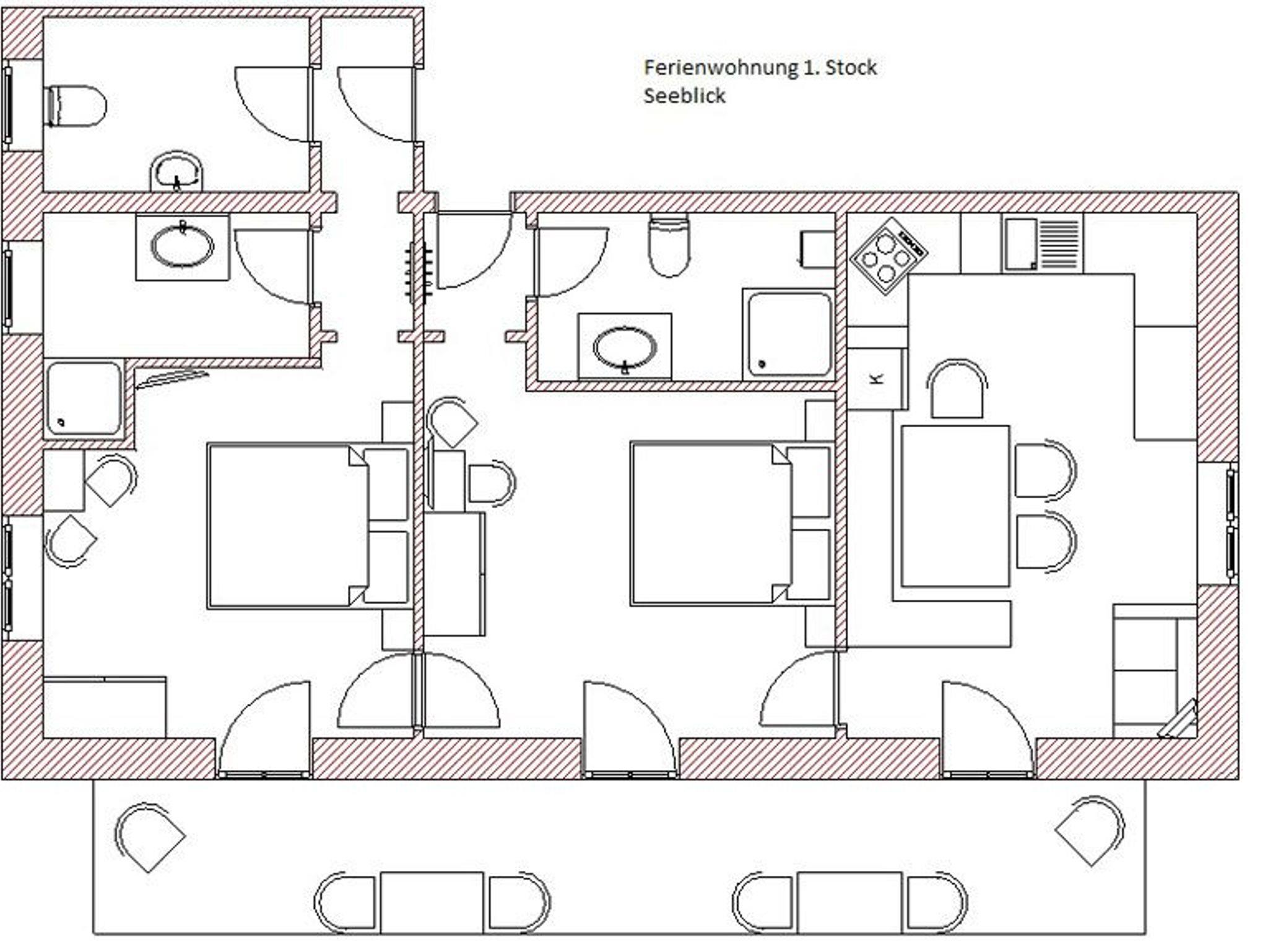
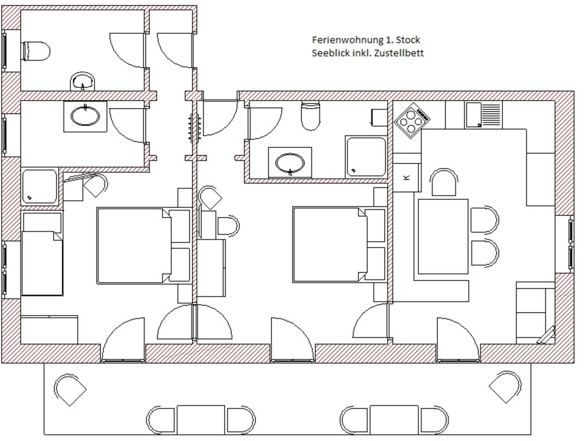
Pension Winter Am Irrsee, Ferienwohnung Seeblick 1. Stock

Ein Sich-zu-Hause-Fühlen braucht mehr als nur einen Aufenthaltsort!

Genießen Sie den herrlichen Blick auf den Irrsee (Zellersee) - nur 500 m entfernt - und tanken Sie Kraft und Energie für einen erholsamen Urlaub im schönen MondSeeLand. 5 bis 10 Gehminuten sind es von unserer Pension zum Ort Zell am Moos bzw. zum Irrsee.
Erleben Sie Natur pur! Direkt neben unserer Pension befindet sich ein Bauernhof.

Gehen Sie auf Entdeckungsreise, verspüren und erleben Sie die einzigartige Umgebung mit allen Sinnen. Wanderwege und Radtouren direkt vom Haus weg, sowie in unmittelbarer Nähe.

Sie sind auch für eine Nacht herzlich willkommen! Ganzjährig geöffnet.

Wir freuen uns auf Sie!
Ihre Familie Winter

Unsere neue sonnige Panorama-Seeblick-Wohnung haben wir mit viel Liebe eingerichtet. Sie gibt ein Gefühl von Behaglichkeit und Wärme. Diese Wohnung besteht aus 2 getrennten Schlafzimmern, jedes mit DU/WC, Kabel-TV und Balkon sowie einer großen Wohnküche mit Couch, Kabel-TV und Balkon.

Vor Ort
Kurtaxe 3,10 Euro/ Person

Våra gästrecensioner Externa recensioner

No guest reviews
3,6
Faciliteter:
3,0
Städning:
5,0
Komfort:
3,0
Vänlighet:
4,0
Läge:
4,0
Totalt:
3,0
Rum:
3,0
Tjänster på plats:
4,0
Prisvärdhet:
3,0
1 extern recension
3,6
september 2016
Faciliteter:
3
Städning:
5
Komfort:
3
Vänlighet:
4
Läge:
4
Totalt:
3
Rum:
3
Tjänster på plats:
4
Prisvärdhet:
3
Allmän:
Ferienwohnung mit einigen Mängeln in der Ausstattung
Anledning till val:
landschaftliche Lage
Förbättringar:
kundenfreundlichere Ausstattung der angebotenen Ferienwohnung Nr. 7. , z.B. Wohnraum-Schlafcouch mit Sitzpostern, Anbringung Fernseher, Nachttischlampen, Stehlampe, Sitzhocker Bad

Faciliteter

  • AktivitetFaciliteter

    • Cykeluthyrning
  • BarnFaciliteter

    • Familjevänlig
    • LEKPLATS
    • Småbarnsutrustning
  • BasicFacilities

    • Storlek
      70 m²
  • BoendeFaciliteter

    • BBQ anläggning
    • Betalkort
    • Internet i det allmänna området
    • Kreditkort
    • Rökfritt hus
    • Safe
  • Distances

    • Till badplatsen/vattenförekomsten
      500 m
    • Till bergsbanan/linbanan
      20 km
    • Till busshållplatsen
      1 km
    • Till centrum
      500 m
    • Till flygplatsen
      36 km
    • Till leden
      4 km
    • Till motorvägen
      6 km
    • Till restaurangen
      500 m
    • Till snabbköpet
      500 m
    • Till tågstationen
      10 km
  • Food facilities

    • Brödservice
  • Omgivande anläggningar

    • PARKERING
    • Trädgård för användning
  • ServiceFaciliteter

    • Balkong
    • Barnstol
    • Brödrost
    • Brödservice
    • Diskmaskin
    • Djur välkomna
    • Dubbelsäng
    • Dusch
    • Dusch/toalett
    • Dålig/WC
    • Flera sovrum
    • Handdukar
    • Husdjur tillåtna eller på begäran
    • Hårtork
    • Icke-rökare
    • Internet - WiFi
    • Kabel / lör
    • Kaffemaskin
    • Kudde
    • Kylskåp
    • Möjlighet till frysning
    • Resesäng/spjälsäng
    • Safe
    • Separat kök
    • SJÖUTSIKT
    • Skrivbord
    • Strö
    • TV
    • TV - platt skärm
    • Tvål
    • UGN
    • UPPVÄRMNING
    • Varmvattenberedare

Kort semester

Det finns möjlighet för en minisemester under hela året.

Priser och kalender

Kalender

Ankomst
Nästa
  • maj 2026
    tiontofr
    18123
    1945678910
    2011121314151617
    2118192021222324
    2225262728293031
    23
  • juni 2026
    tiontofr
    231234567
    24891011121314
    2515161718192021
    2622232425262728
    272930
    28
   Kontrollera tillgängligheten på det valda datumet
Ledigt
Belagt
   Ankomst möjlig
Varaktighet
Personer

Pris

Period
Ankomst
Avresa
Varaktighet
1 vecka
Personer
Inga personer tillåtna

Please notice

Ankomst har inte valts.
Personer har inte valts.
Avtals- och hyrevillkor