Semesterlägenhet - 12 personer - 73440 - Les Belleville
Alternativa objekter
I närheten (94)12 personer
Översikt
Objektnr.: 357-FR-73440-538
7 nätter
Från
SEK 74 344,-
Inkl. städning
- Erbjuder minisemester Nej
- Tvättmaskin Ja
- Torktumlare Ja
- Diskmaskin Ja
Beskrivning
Stuga i Caseblanche med bastu och utsikt
Hus:
I den pittoreska byn Caseblanche, där modern elegans möter alpin charm, erbjuder Chalet TAWNY en exceptionell tillflyktsort för både skidentusiaster och naturälskare. Bara 50 meter från Saint Martin-linbanan erbjuder denna exklusiva stuga direkt tillgång till det världsberömda skidområdet Les Trois Vallées, vilket lovar oförglömliga dagar i orörda backar. Med panoramautsikt över de omgivande bergen inbjuder stugan dig att fördjupa dig i de franska Alpernas skönhet medan du njuter av oöverträffad komfort och bekvämlighet. \n\nChalet TAWNY är designad med noggrann uppmärksamhet på detaljer och ståtar med en mysig lounge med öppen spis, perfekt för att varva ner efter en dag av äventyr. Bastun erbjuder en rogivande tillflyktsort, medan trädgårdsterrassen ger en lugn miljö för morgonkaffe eller kvällsavkoppling. Stugan rymmer upp till 12 gäster fördelade på sex vackert inredda sovrum, alla utrustade med eget badrum och moderna bekvämligheter som tv-apparater. Det öppna köket är fullt utrustat för att laga läckra måltider, och skidrummet med pjäxvärmare säkerställer att varje dag börjar bekvämt. \n\nSjälva byn har en sportbutik och ett bergsbrasserie, vilket bidrar till bekvämligheten av din vistelse. Oavsett om du utforskar backarna, njuter av lokal mat eller bara njuter av den alpina atmosfären, finns allt du behöver inom räckhåll. På vintern är sängarna bäddade vid ankomst och handdukar tillhandahålls, vilket garanterar en smidig och lyxig upplevelse. \n\nChalet TAWNY är mer än bara ett ställe att bo på; det är en port till oförglömliga minnen i hjärtat av de franska Alperna. Med sin blandning av modern komfort och autentisk bergscharm lovar denna stuga en semester fylld av avkoppling, äventyr och hisnande landskap.
Hus:
I den pittoreska byn Caseblanche, där modern elegans möter alpin charm, erbjuder Chalet TAWNY en exceptionell tillflyktsort för både skidentusiaster och naturälskare. Bara 50 meter från Saint Martin-linbanan erbjuder denna exklusiva stuga direkt tillgång till det världsberömda skidområdet Les Trois Vallées, vilket lovar oförglömliga dagar i orörda backar. Med panoramautsikt över de omgivande bergen inbjuder stugan dig att fördjupa dig i de franska Alpernas skönhet medan du njuter av oöverträffad komfort och bekvämlighet. \n\nChalet TAWNY är designad med noggrann uppmärksamhet på detaljer och ståtar med en mysig lounge med öppen spis, perfekt för att varva ner efter en dag av äventyr. Bastun erbjuder en rogivande tillflyktsort, medan trädgårdsterrassen ger en lugn miljö för morgonkaffe eller kvällsavkoppling. Stugan rymmer upp till 12 gäster fördelade på sex vackert inredda sovrum, alla utrustade med eget badrum och moderna bekvämligheter som tv-apparater. Det öppna köket är fullt utrustat för att laga läckra måltider, och skidrummet med pjäxvärmare säkerställer att varje dag börjar bekvämt. \n\nSjälva byn har en sportbutik och ett bergsbrasserie, vilket bidrar till bekvämligheten av din vistelse. Oavsett om du utforskar backarna, njuter av lokal mat eller bara njuter av den alpina atmosfären, finns allt du behöver inom räckhåll. På vintern är sängarna bäddade vid ankomst och handdukar tillhandahålls, vilket garanterar en smidig och lyxig upplevelse. \n\nChalet TAWNY är mer än bara ett ställe att bo på; det är en port till oförglömliga minnen i hjärtat av de franska Alperna. Med sin blandning av modern komfort och autentisk bergscharm lovar denna stuga en semester fylld av avkoppling, äventyr och hisnande landskap.
Faciliteter
-
Allmän information
-
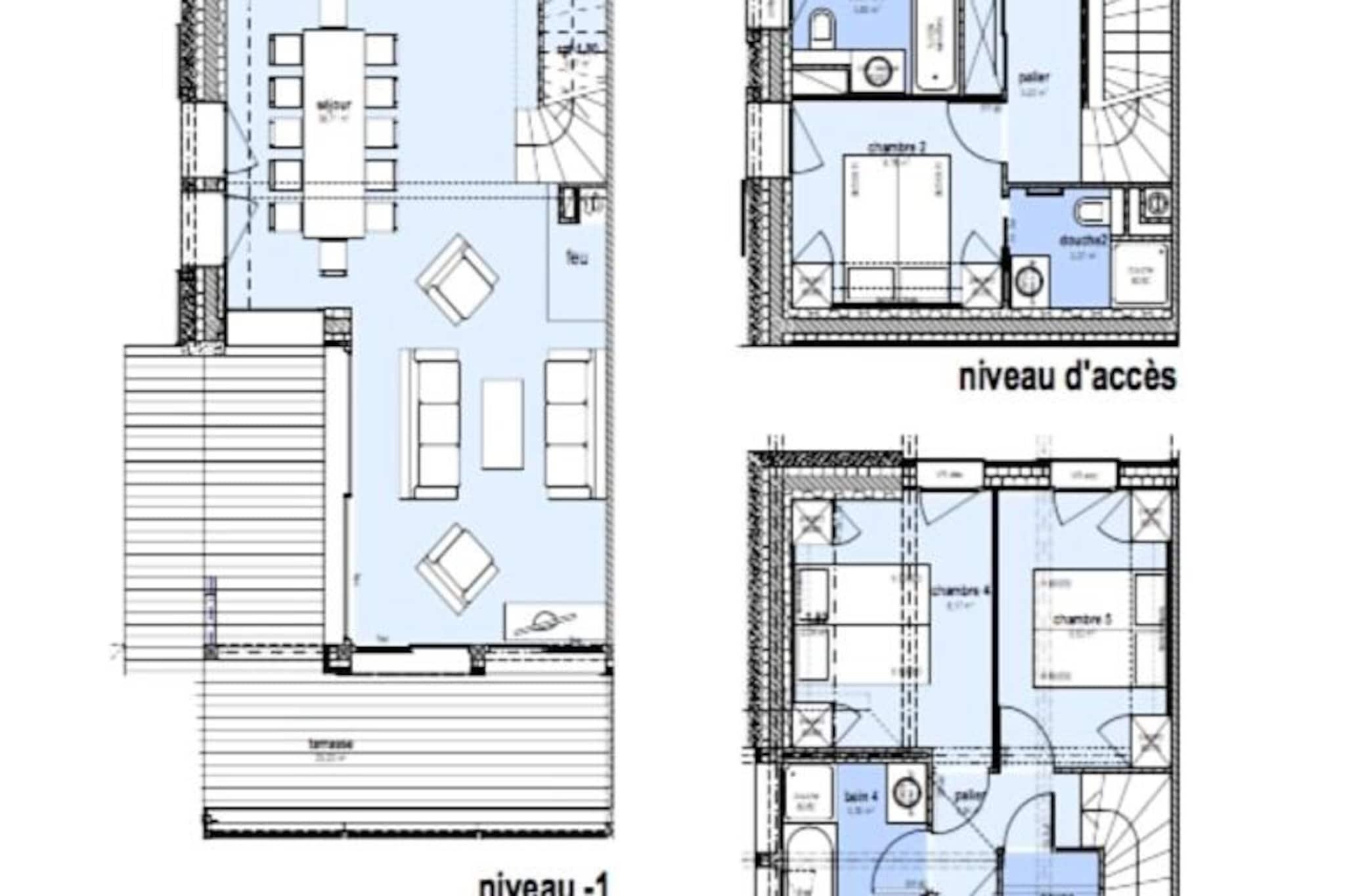
Boyta140 m²
-
Diskmaskin
-
Mikrovågsugn
-
TV
-
Tvättmaskin
-
-
Andra
-
Balkong
-
Heating
-
Hårtork
-
Strykbräda
-
-
Building status
-
Lägenhet
-
-
Fritidsaktiviteter
-
Skiing
-
-
Köksartiklar
-
Brödrost
-
Dishwasher
-
Fat och bestick
-
Kaffemaskin
-
Mikrovågsugn
-
Vatten kokare
-
-
Parkfaciliteter
-
Parkering
-
-
Rumsartiklar
-
Dammsugare
-
TV
-
Öppen spis
-
-
Typ
-
Lägenhet
-
-
VVS / Tvätt
-
Torktumlare
-
Tvättmaskin
-
Priser och kalender
Kalender
Varaktighet
Pris
Period
- Ankomst
- Avresa
- Varaktighet
- 1 vecka
Personer
Upp till 12 personer
Please notice
Ankomst har inte valts.