Semesterlägenhet - 4 personer - 73600 - Les Belleville
Alternativa objekter
I närheten (395)4 personer
Översikt
Objektnr.: 357-FR-73600-172
7 nätter
SEK 10 020,-
Inkl. städning
- Erbjuder minisemester Nej
- Diskmaskin Ja
Beskrivning
VAL THORENS uthyrning: Solig studio för 4 personer i ett livligt område (LES NEVES)
Hus:
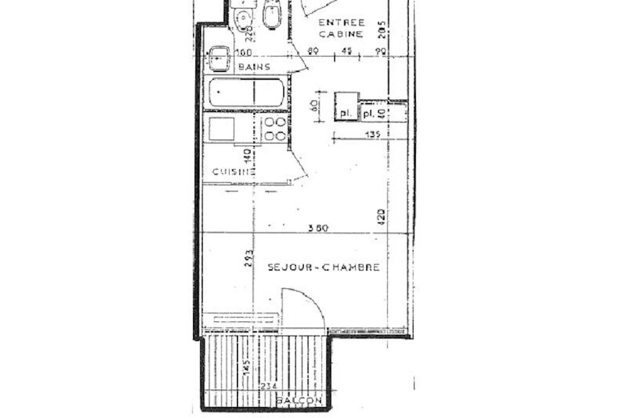
I hjärtat av Val Thorens, där Alpernas pulserande energi möter charmen hos en livlig skidort, erbjuder denna mysiga studio en oförglömlig vistelse för dig som söker äventyr och nattliv. Belägen i LES NEVES-residenset, placerar denna fastighet dig högst upp i orten, omgiven av livliga barer, nattklubbar och mittemot köpcentret Péclet, där du hittar stormarknader, butiker och restauranger som tillgodoser alla dina behov. Från din sydvästvända balkong kan du njuta av den dynamiska utsikten över orten och de livliga gatorna nedanför, som surrar av spänning dag och natt. Denna 25 m² stora studio är noggrant utformad för att maximera komfort och funktionalitet. Entréhallen har två våningssängar, medan vardagsrummet erbjuder en utdragssäng, vilket ger sovplatser för upp till fyra gäster. Köket är utrustat med ugn och diskmaskin, vilket gör det enkelt att laga mat att njuta av i den inbjudande matplatsen. Det kompakta duschrummet har en toalett, vilket säkerställer att alla nödvändigheter finns täckta för en bekväm vistelse. Bara 50 meter från backarna erbjuder residenset oöverträffad tillgång till Val Thorens skidåkning i världsklass, en del av det berömda skidområdet Les Trois Vallées. Oavsett om du åker genom färskt pudersnö eller utforskar afterski-scenen, finns allt inom räckhåll. Observera att den här fastigheten passar bäst för dig som vill fördjupa dig i det pulserande nattlivet i orten, eftersom den ligger ovanför barer och nattklubbar. För en dynamisk och spännande alpin flykt är denna studio din port till den ultimata Val Thorens-upplevelsen. Boka nu för att skapa oförglömliga minnen på en av de mest ikoniska skiddestinationerna i världen.
Hus:
I hjärtat av Val Thorens, där Alpernas pulserande energi möter charmen hos en livlig skidort, erbjuder denna mysiga studio en oförglömlig vistelse för dig som söker äventyr och nattliv. Belägen i LES NEVES-residenset, placerar denna fastighet dig högst upp i orten, omgiven av livliga barer, nattklubbar och mittemot köpcentret Péclet, där du hittar stormarknader, butiker och restauranger som tillgodoser alla dina behov. Från din sydvästvända balkong kan du njuta av den dynamiska utsikten över orten och de livliga gatorna nedanför, som surrar av spänning dag och natt. Denna 25 m² stora studio är noggrant utformad för att maximera komfort och funktionalitet. Entréhallen har två våningssängar, medan vardagsrummet erbjuder en utdragssäng, vilket ger sovplatser för upp till fyra gäster. Köket är utrustat med ugn och diskmaskin, vilket gör det enkelt att laga mat att njuta av i den inbjudande matplatsen. Det kompakta duschrummet har en toalett, vilket säkerställer att alla nödvändigheter finns täckta för en bekväm vistelse. Bara 50 meter från backarna erbjuder residenset oöverträffad tillgång till Val Thorens skidåkning i världsklass, en del av det berömda skidområdet Les Trois Vallées. Oavsett om du åker genom färskt pudersnö eller utforskar afterski-scenen, finns allt inom räckhåll. Observera att den här fastigheten passar bäst för dig som vill fördjupa dig i det pulserande nattlivet i orten, eftersom den ligger ovanför barer och nattklubbar. För en dynamisk och spännande alpin flykt är denna studio din port till den ultimata Val Thorens-upplevelsen. Boka nu för att skapa oförglömliga minnen på en av de mest ikoniska skiddestinationerna i världen.
Faciliteter
-
Allmän information
-
Boyta25 m²
-
Diskmaskin
-
TV
-
Ugn
-
-
Andra
-
Balkong
-
Heating
-
-
Building status
-
Lägenhet
-
-
Fritidsaktiviteter
-
Skiing
-
-
Köksartiklar
-
Brödrost
-
Dishwasher
-
Fat och bestick
-
Kaffemaskin
-
Ugn
-
Vatten kokare
-
-
Rumsartiklar
-
TV
-
-
Runt huset
-
Hiss
-
-
Typ
-
Lägenhet
-
Priser och kalender
Kalender
Varaktighet
Pris
Period
- Ankomst
- Avresa
- Varaktighet
- 1 vecka
Personer
Upp till 4 personer
Please notice
Ankomst har inte valts.