Semesterlägenhet - 4 personer - 73600 - Les Belleville
Alternativa objekter
I närheten (395)4 personer
Översikt
Objektnr.: 357-FR-73600-202
7 nätter
Från
SEK 13 770,-
Inkl. städning
- Erbjuder minisemester Nej
- Diskmaskin Ja
Beskrivning
Lägenhet i Val Thorens nära skidbackarna
Hus:
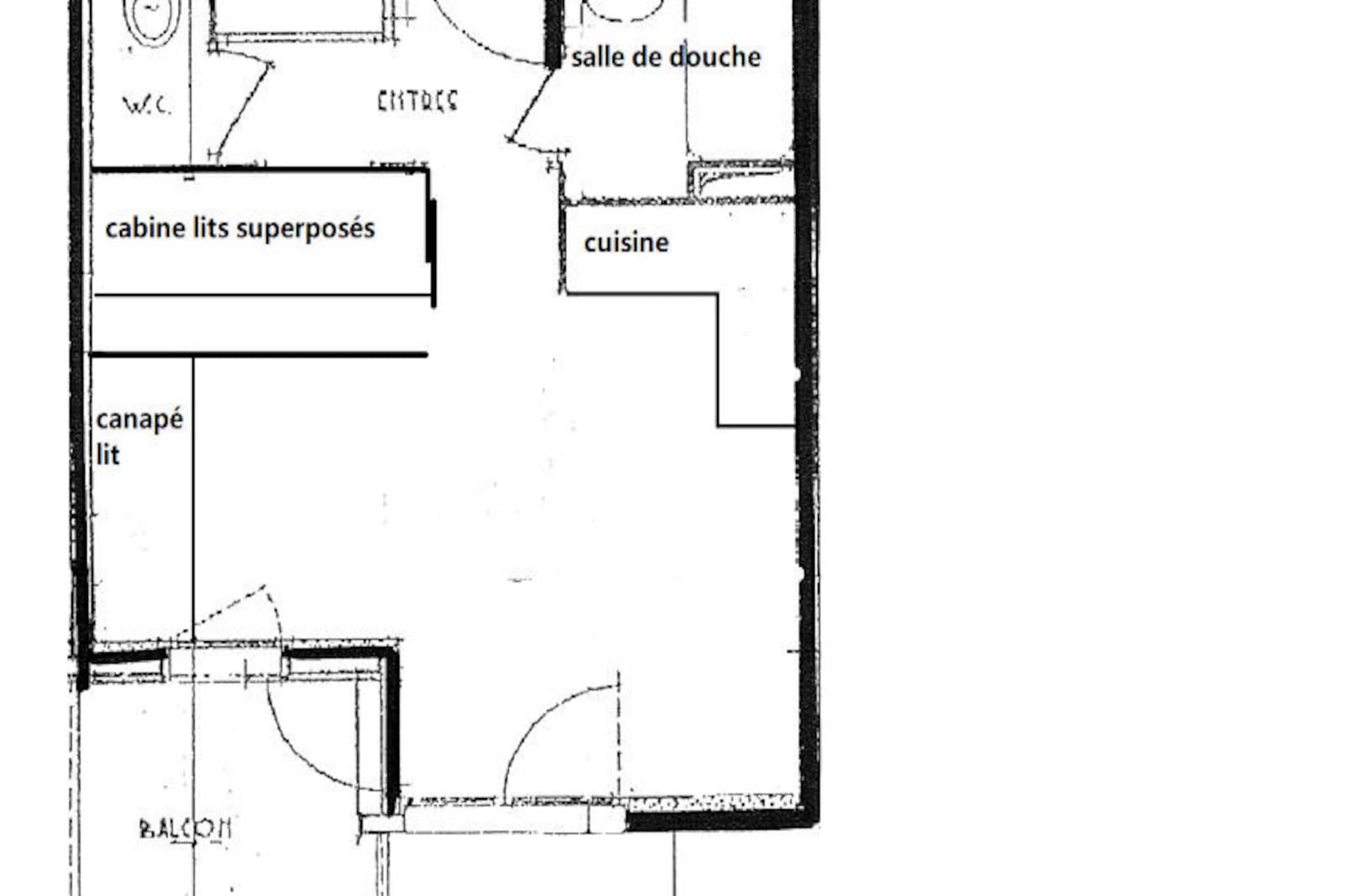
Vid porten till den världsberömda skidorten Val Thorens inbjuder denna charmiga lägenhet på bottenvåningen i LE JOKER-residenset dig att uppleva magin i de franska Alperna. Fastigheten, som nyligen renoverades 2021, kombinerar moderna bekvämligheter med ett utmärkt läge och erbjuder hisnande utsikt i söderläge över de majestätiska topparna och det vidsträckta skidområdet direkt från din privata balkong. Oavsett om du är här för spänningen i backarna eller den fridfulla alpina atmosfären, lovar denna mysiga tillflyktsort en oförglömlig vistelse. Inuti är den 26 m² stora lägenheten noggrant utformad för att maximera komfort och funktionalitet. Vardagsrummet har en bekväm bäddsoffa, medan en smart separerad sovplats erbjuder två våningssängar, vilket gör den idealisk för familjer eller små grupper. Det fullt utrustade köket inkluderar en multifunktionsugn, spishäll, kylskåp och diskmaskin, vilket säkerställer att du har allt du behöver för att laga rejäla måltider efter en dag i backarna. En separat toalett och badrum bidrar till bekvämligheten, medan ett skidförvaring på bottenvåningen håller din utrustning säker och redo för action. Bara 50 meter från backarna är läget en skidåkares dröm. Det närliggande köpcentret och sportkomplexet Caron erbjuder enkel tillgång till restauranger, shopping och nöjen, vilket säkerställer att alla dina behov tillgodoses. Under sommarmånaderna förvandlas området till en fristad för vandrare och naturentusiaster, med stigar som slingrar sig genom det fantastiska alpina landskapet. Oavsett om du söker äventyr eller avkoppling är denna lägenhet din perfekta bas för att utforska Val Thorens underverk. Boka din vistelse idag och skapa minnen som varar livet ut.
Hus:
Vid porten till den världsberömda skidorten Val Thorens inbjuder denna charmiga lägenhet på bottenvåningen i LE JOKER-residenset dig att uppleva magin i de franska Alperna. Fastigheten, som nyligen renoverades 2021, kombinerar moderna bekvämligheter med ett utmärkt läge och erbjuder hisnande utsikt i söderläge över de majestätiska topparna och det vidsträckta skidområdet direkt från din privata balkong. Oavsett om du är här för spänningen i backarna eller den fridfulla alpina atmosfären, lovar denna mysiga tillflyktsort en oförglömlig vistelse. Inuti är den 26 m² stora lägenheten noggrant utformad för att maximera komfort och funktionalitet. Vardagsrummet har en bekväm bäddsoffa, medan en smart separerad sovplats erbjuder två våningssängar, vilket gör den idealisk för familjer eller små grupper. Det fullt utrustade köket inkluderar en multifunktionsugn, spishäll, kylskåp och diskmaskin, vilket säkerställer att du har allt du behöver för att laga rejäla måltider efter en dag i backarna. En separat toalett och badrum bidrar till bekvämligheten, medan ett skidförvaring på bottenvåningen håller din utrustning säker och redo för action. Bara 50 meter från backarna är läget en skidåkares dröm. Det närliggande köpcentret och sportkomplexet Caron erbjuder enkel tillgång till restauranger, shopping och nöjen, vilket säkerställer att alla dina behov tillgodoses. Under sommarmånaderna förvandlas området till en fristad för vandrare och naturentusiaster, med stigar som slingrar sig genom det fantastiska alpina landskapet. Oavsett om du söker äventyr eller avkoppling är denna lägenhet din perfekta bas för att utforska Val Thorens underverk. Boka din vistelse idag och skapa minnen som varar livet ut.
Faciliteter
-
Allmän information
-
Boyta26 m²
-
Diskmaskin
-
Mikrovågsugn
-
TV
-
-
Andra
-
Balkong
-
Heating
-
-
Building status
-
Lägenhet
-
-
Fritidsaktiviteter
-
Skiing
-
-
Köksartiklar
-
Brödrost
-
Dishwasher
-
Fat och bestick
-
Mikrovågsugn
-
Vatten kokare
-
-
Rumsartiklar
-
TV
-
-
Typ
-
Lägenhet
-
Priser och kalender
Kalender
Ankomst
-
februari 2026
må ti on to fr lö sö 5 1 6 2 3 4 5 6 7 8 7 9 10 11 12 13 14 15 8 16 17 18 19 20 21 22 9 23 24 25 26 27 28 10 -
mars 2026
må ti on to fr lö sö 9 1 10 2 3 4 5 6 7 8 11 9 10 11 12 13 14 15 12 16 17 18 19 20 21 22 13 23 24 25 26 27 28 29 14 30 31
Kontrollera tillgängligheten på det valda datumet
Ledigt
Belagt
Ankomst möjlig
Varaktighet
Pris
Period
- Ankomst
- Avresa
- Varaktighet
- 1 vecka
Personer
Upp till 4 personer
Please notice
Ankomst har inte valts.