Semesterlägenhet - 3 personer - 73600 - Les Belleville
Alternativa objekter
I närheten (416)3 personer
Översikt
Objektnr.: 357-FR-73600-452
7 nätter
Från
SEK 7 383,-
Inkl. städning
- Erbjuder minisemester Nej
- Diskmaskin Ja
Beskrivning
Lägenhet i Reberty nära skidbackarna
Hus:
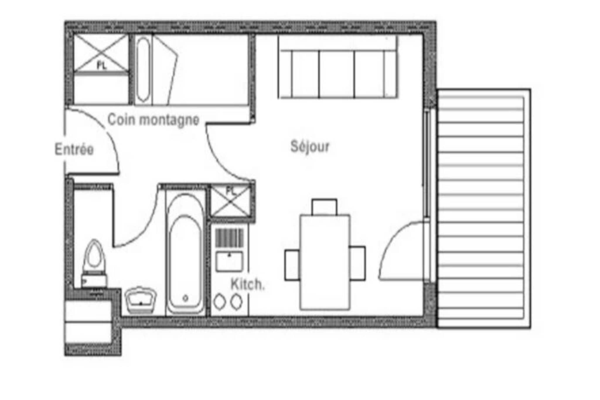
Högt ovanför det livliga Reberty 1850-distriktet erbjuder denna charmiga studiolägenhet en mysig tillflyktsort för upp till tre gäster. Med sin balkong i söderläge vaknar du upp till ett varmt solljus och en hisnande utsikt över det omgivande alpina landskapet. Oavsett om du är här för spännande dagar i backarna eller lugna kvällar i bergen, lovar denna bostad en minnesvärd vistelse i hjärtat av Les Menuires. Lägenheten totalrenoverades 2014 och kombinerar modern komfort med en touch av traditionell bergscharm. \n\nInuti hittar du ett omsorgsfullt utformat utrymme med ett vardagsrum med en bäddsoffa för en enda person och en utdragbar säng, samt en separat sovalkov med en enkelsäng för extra avskildhet. Köket är utrustat med allt du behöver för att laga rejäla måltider efter en dag av äventyr, inklusive kylskåp, mikrovågsugn, diskmaskin och Senseo-kaffemaskin. Badrummet har ett avkopplande badkar, perfekt för att varva ner efter en aktiv dag. Ytterligare bekvämligheter inkluderar TV, filtar och plastgolv i hela lägenheten för enkelt underhåll. Observera att husdjur inte är tillåtna och våningssängen är inte lämplig för barn under sex år.\n\nResidenset Médian har bekväm tillgång till närliggande faciliteter, inklusive gratis parkering vid foten av byggnaden, butiker och en skidskola bara en kort promenad bort. Backarna ligger bara 250 meter från din dörr, vilket gör det enkelt att dyka ner i den världsklassiga skidåkningen som Les Menuires är känt för. På sommaren förvandlas området till en fristad för vandrare och naturentusiaster, med stigar som slingrar sig genom fantastiska landskap.\n\nOavsett om du söker äventyr eller avkoppling är denna lägenhet din port till det bästa av de franska Alperna. Från sitt utmärkta läge till sina omtänksamma bekvämligheter är det det perfekta valet för par, små familjer eller ensamresenärer som vill fördjupa sig i alpin charm.
Hus:
Högt ovanför det livliga Reberty 1850-distriktet erbjuder denna charmiga studiolägenhet en mysig tillflyktsort för upp till tre gäster. Med sin balkong i söderläge vaknar du upp till ett varmt solljus och en hisnande utsikt över det omgivande alpina landskapet. Oavsett om du är här för spännande dagar i backarna eller lugna kvällar i bergen, lovar denna bostad en minnesvärd vistelse i hjärtat av Les Menuires. Lägenheten totalrenoverades 2014 och kombinerar modern komfort med en touch av traditionell bergscharm. \n\nInuti hittar du ett omsorgsfullt utformat utrymme med ett vardagsrum med en bäddsoffa för en enda person och en utdragbar säng, samt en separat sovalkov med en enkelsäng för extra avskildhet. Köket är utrustat med allt du behöver för att laga rejäla måltider efter en dag av äventyr, inklusive kylskåp, mikrovågsugn, diskmaskin och Senseo-kaffemaskin. Badrummet har ett avkopplande badkar, perfekt för att varva ner efter en aktiv dag. Ytterligare bekvämligheter inkluderar TV, filtar och plastgolv i hela lägenheten för enkelt underhåll. Observera att husdjur inte är tillåtna och våningssängen är inte lämplig för barn under sex år.\n\nResidenset Médian har bekväm tillgång till närliggande faciliteter, inklusive gratis parkering vid foten av byggnaden, butiker och en skidskola bara en kort promenad bort. Backarna ligger bara 250 meter från din dörr, vilket gör det enkelt att dyka ner i den världsklassiga skidåkningen som Les Menuires är känt för. På sommaren förvandlas området till en fristad för vandrare och naturentusiaster, med stigar som slingrar sig genom fantastiska landskap.\n\nOavsett om du söker äventyr eller avkoppling är denna lägenhet din port till det bästa av de franska Alperna. Från sitt utmärkta läge till sina omtänksamma bekvämligheter är det det perfekta valet för par, små familjer eller ensamresenärer som vill fördjupa sig i alpin charm.
Faciliteter
-
Allmän information
-
Boyta18 m²
-
Diskmaskin
-
Mikrovågsugn
-
TV
-
-
Andra
-
Balkong
-
Heating
-
Hårtork
-
-
Building status
-
Lägenhet
-
-
Fritidsaktiviteter
-
Skiing
-
-
Köksartiklar
-
Brödrost
-
Dishwasher
-
Fat och bestick
-
Kaffemaskin
-
Mikrovågsugn
-
Vatten kokare
-
-
Rumsartiklar
-
Dammsugare
-
TV
-
-
Runt huset
-
Hiss
-
-
Typ
-
Lägenhet
-
Priser och kalender
Kalender
Varaktighet
Pris
Period
- Ankomst
- Avresa
- Varaktighet
- 1 vecka
Personer
Upp till 3 personer
Please notice
Ankomst har inte valts.