Semesterlägenhet - 6 personer - Rohrbacher Straße - 69115 - Heidelberg
Alternativa objekter
I närheten (7)6 personer
Översikt
Objektnr.: 540-268025-186423
- Erbjuder minisemester Nej
- Parabol/kabel TV Ja
- Tvättmaskin Ja
- Diskmaskin Ja
Beskrivning
Tyvärr finns inte denna beskrivning tillgänglig på Svenska. Se beskrivningen i Tyska eller se den maskinöversatta texten i Svenska.
Ferienwohnung/App. für 6 Gäste mit 123m² in Heidelberg (268025) (Dachgeschoss)
Diese stilvolle Maisonette-Wohnung im Herzen der Altstadt bietet alles, was Heidelberg so besonders macht. In direkter Nähe zu Sehenswürdigkeiten wie dem Marktplatz, der Alten Brücke und dem Schlossaufgang genießen Sie höchsten Komfort auf 123 m² mit moderner Ausstattung und herrlichem Ausblick.
Heidelberg gilt als eine der romantischsten Städte der Welt. In dieser Wohnung wirst Du fühlen und verstehen warum das so ist. Alles was Heidelberg ausmacht ist in direkter Nachbarschaft zur Wohnung.
Die Altstadt, Marktplatz, Universitätsplatz, Hauptstraße, Alte Brücke, Bergbahn und der Aufgang zum Schloss sind allesamt unmittelbar zu erreichen.
Das vollmöblierte Dachgeschoss Maisonette Apartment befindet sich direkt im Stadtzentrum eines Mehrfamilienhauses mit wunderschönem Ausblick.
Die Unterkunft
Die modern eingerichtete Wohnung lädt zum Verweilen ein.
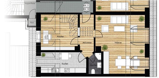
Die Wohnung verfügt über 123 m² Wohnfläche und gliedert sich wie folgt:
1. DG:
Von der zentralen Diele betreten Sie den großzügigen Wohn-/Essbereich.
Des Weiteren erschließen sich eine geräumige Küche, ein Badezimmer und ein Durchgangszimmer (als Schlafraum mit 1,60m x 2,00m Bett) zum Treppenaufgang ins 2. Obergeschoss.
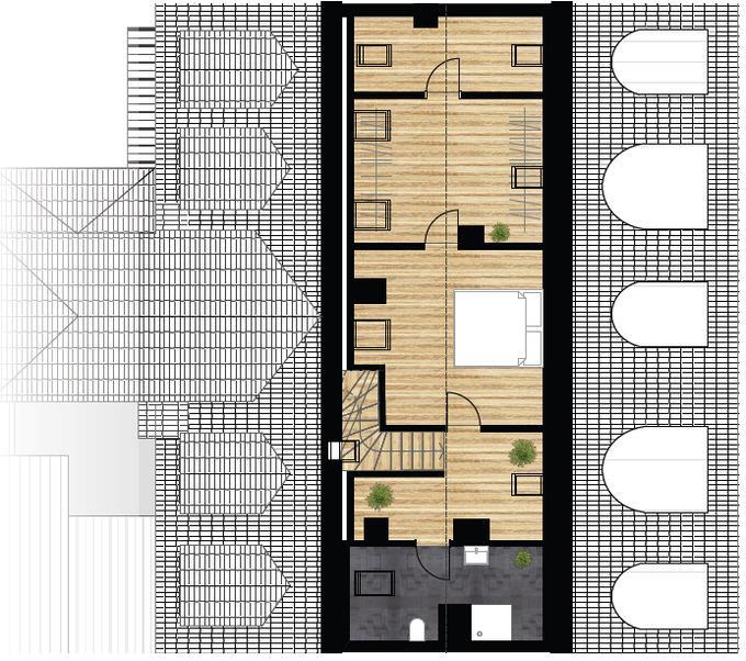
2.DG:
Weiterhin verfügt die Wohnung über ein zweites Badezimmer. Ein großes Schlafzimmer mit Doppelbett (1,80m), sowie ein weiteres Durchgangszimmer mit 2 Einzelbetten und kleinem Ankleidezimmer runden das 2. DG ab.
Ein Personenaufzug verbindet komfortabel die Stockwerke vom EG bis zum 3. OG einschließlich Kellergeschoss miteinander, so dass ein bequemer Zugang zur Wohnung gewährleistet ist. Das letzte Stockwerk zur Wohnung ist allerdings zu Fuß zu bewältigen. Die Wohnung befindet sich im 4. OG.
Zur Wohnung gehört ein Tiefgaragenstellplatz in unmittelbarer Nähe.
Zusammengefasst:
- 1 Wohn- und Esszimmer
- 1 Schlafzimmer (Doppelbett 1,80m)
- 1 Schlafzimmer (2 Einzelbetten 0,90m)
- 1 Lesezimmer (franz. Bett 1,60m)
- 2 Bäder mit großer Dusche und WC
- 1 geräumige Küche mit Esstisch inkl. Grundausstattung, als auch eine Grundauswahl an Gewürzen, Essig-/Öl, Zucker, Tee und eine NESPRESSO Kaffee-Kapselmaschine samt einer Grundauswahl an Kaffee.
Die Altstadt, Marktplatz, Universitätsplatz, Hauptstraße, Alte Brücke, Bergbahn und der Aufgang zum Schloss sind allesamt unmittelbar zu erreichen.
Das vollmöblierte Dachgeschoss Maisonette Apartment befindet sich direkt im Stadtzentrum eines Mehrfamilienhauses mit wunderschönem Ausblick.
Die Unterkunft
Die modern eingerichtete Wohnung lädt zum Verweilen ein.
Die Wohnung verfügt über 123 m² Wohnfläche und gliedert sich wie folgt:
1. DG:
Von der zentralen Diele betreten Sie den großzügigen Wohn-/Essbereich.
Des Weiteren erschließen sich eine geräumige Küche, ein Badezimmer und ein Durchgangszimmer (als Schlafraum mit 1,60m x 2,00m Bett) zum Treppenaufgang ins 2. Obergeschoss.
2.DG:
Weiterhin verfügt die Wohnung über ein zweites Badezimmer. Ein großes Schlafzimmer mit Doppelbett (1,80m), sowie ein weiteres Durchgangszimmer mit 2 Einzelbetten und kleinem Ankleidezimmer runden das 2. DG ab.
Ein Personenaufzug verbindet komfortabel die Stockwerke vom EG bis zum 3. OG einschließlich Kellergeschoss miteinander, so dass ein bequemer Zugang zur Wohnung gewährleistet ist. Das letzte Stockwerk zur Wohnung ist allerdings zu Fuß zu bewältigen. Die Wohnung befindet sich im 4. OG.
Zur Wohnung gehört ein Tiefgaragenstellplatz in unmittelbarer Nähe.
Zusammengefasst:
- 1 Wohn- und Esszimmer
- 1 Schlafzimmer (Doppelbett 1,80m)
- 1 Schlafzimmer (2 Einzelbetten 0,90m)
- 1 Lesezimmer (franz. Bett 1,60m)
- 2 Bäder mit großer Dusche und WC
- 1 geräumige Küche mit Esstisch inkl. Grundausstattung, als auch eine Grundauswahl an Gewürzen, Essig-/Öl, Zucker, Tee und eine NESPRESSO Kaffee-Kapselmaschine samt einer Grundauswahl an Kaffee.
Licens nr.: ZE-2022-269-WZ-115A
Faciliteter
-
Allmän utrustning
-
Fri från turistskatt
-
Icke-rökare
-
Internet
-
Tvättmaskin
-
UPPVÄRMNING
-
Wlan
-
-
Bad
-
Dusch
-
Gästtoalett
-
Hårtork
-
-
Grundläggande
-
Kök1
-
Storlek123 m²
-
Vardagsrum1
-
-
Kök
-
Brödrost
-
Diskmaskin
-
Espressomaskin
-
Frys
-
Glas-/Cerankochfeld
-
Kaffemaskin
-
Kyl/låda
-
Kylskåp
-
Pentry/kvarter
-
UGN
-
Varmvattenberedare
-
-
Köksredskap
-
Kök
-
Mikrovågsugn
-
-
Region/plats
-
Centralt läge
-
-
Service
-
Handdukar inkl.
-
Kökshanddukar inkl.
-
Sängkläder inkl.
-
-
Säkerhet
-
Brandsläckare
-
Brandvarnare
-
-
Sällskapsdjur
-
Husdjur är inte tillåtna
-
-
Utrustning lägenhet
-
Barnstol
-
-
Vardagsrum/sovrum
-
Barnstol
-
Dubbelsäng
-
Enkelsäng
-
Platt TV
-
Spjälsäng
-
Spjälsäng
-
TV
-
Priser och kalender
Kalender
Ankomst
-
december 2025
må ti on to fr lö sö 49 1 2 3 4 5 6 7 50 8 9 10 11 12 13 14 51 15 16 17 18 19 20 21 52 22 23 24 25 26 27 28 1 29 30 31 2 -
januari 2026
må ti on to fr lö sö 1 1 2 3 4 2 5 6 7 8 9 10 11 3 12 13 14 15 16 17 18 4 19 20 21 22 23 24 25 5 26 27 28 29 30 31 6
Kontrollera tillgängligheten på det valda datumet
Ledigt
Belagt
Ankomst möjlig
Varaktighet
Pris
Period
- Ankomst
- Avresa
- Varaktighet
Personer
Upp till 6 personer
Please notice
Kan ikke bookes på nuværende tidspunkt.