Chalet - 7 personer - 6105 - Leutasch
Alternativa objekter
I närheten (19)7 personer
Översikt
Objektnr.: 350-AT-6105-38
7 nätter
Från
SEK 39 656,-
Inkl. städning
7
personer
- Erbjuder minisemester Ja
- Avstånd affärer 2 km
- Tvättmaskin Ja
- Diskmaskin Ja
Beskrivning
Chalet Leßner - Ren design och lugn
Hus:
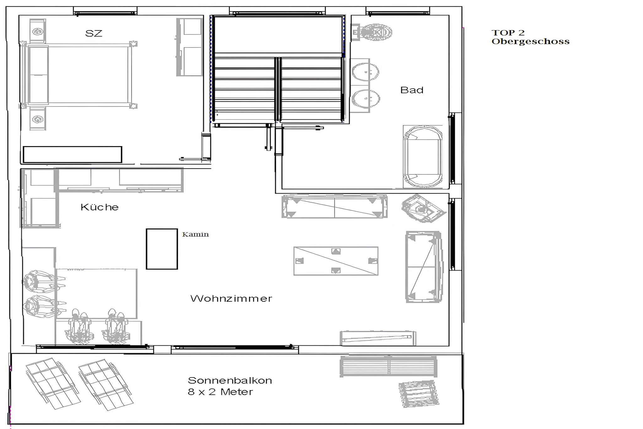
Två eleganta lägenheter kombinerade i en exklusiv stuga i Leutaschdalen – det är Chalet Leßner. Ren arkitektur, naturliga, högkvalitativa material och genomtänkt design skapar ett exceptionellt tillfälligt hem – med gott om plats för lugn, avkoppling och njutning av naturen. Stugat erbjuder plats för upp till 7 personer i 3 sovrum, 2 fullt utrustade kök, två vardagsrum – ett med öppen spis, ett med tillgång till trädgården – och två rymliga badrum inklusive wellness-funktioner som fristående badkar och infraröd ångkabin. Oavsett om det är sommar eller vinter: Läget är idealiskt. Längdskidspår, vandringsleder, cykelvägar och en busshållplats ligger bara några steg bort. På sommaren lockar badsjöar, alpina betesmarker och Gaistaldalen, medan på vintern väntar 245 km längdskidspår och snöiga vintervandringsleder. Längdskidspårkartor ingår. Stor trädgård, balkong med utsikt över bergen och gratis parkering direkt framför huset – Chalet Leßner är den perfekta platsen för familjer eller vänner som söker avkoppling och komfort.
Layout:
Bottenvåningen: (öppet kök(vattenkokare, spis(Spis med 4 kokplattor, induktion), kaffebryggare(kaffetratt), ugn, diskmaskin, kyl och frys, Wine glasses), ardags- och matrum(TV, matbord, sitthörna, balkong eller terrass), sovrum(dubbelsäng), sovrum(enkelsäng, dubbelsäng), badrum(dusch), WC) På våning 1: (öppet kök(vattenkokare, spis(Spis med 4 kokplattor, induktion), kaffebryggare(kaffetratt), Espressobrygga, ugn, diskmaskin, kyl och frys), ardags- och matrum(TV, matbord, öppen spis, sitthörna, stereo, balkong), sovrum(dubbelsäng), badrum(badkar, handfat, handfat, private infrared cabin, toalett )) skidförvaring(pjäxvärmare), tvättmaskin, terrass, trädgård, cykelförvaring, trädgårdsmöbler, grill, parkering
Notera:
På av lugn och ro, hyrs denna semesterbostad inte ut till ungdomsgrupper Det är absolut förbjudet att anordna studentfester, möhippor, svensexor eller fyllefester i huset
Hus:
Två eleganta lägenheter kombinerade i en exklusiv stuga i Leutaschdalen – det är Chalet Leßner. Ren arkitektur, naturliga, högkvalitativa material och genomtänkt design skapar ett exceptionellt tillfälligt hem – med gott om plats för lugn, avkoppling och njutning av naturen. Stugat erbjuder plats för upp till 7 personer i 3 sovrum, 2 fullt utrustade kök, två vardagsrum – ett med öppen spis, ett med tillgång till trädgården – och två rymliga badrum inklusive wellness-funktioner som fristående badkar och infraröd ångkabin. Oavsett om det är sommar eller vinter: Läget är idealiskt. Längdskidspår, vandringsleder, cykelvägar och en busshållplats ligger bara några steg bort. På sommaren lockar badsjöar, alpina betesmarker och Gaistaldalen, medan på vintern väntar 245 km längdskidspår och snöiga vintervandringsleder. Längdskidspårkartor ingår. Stor trädgård, balkong med utsikt över bergen och gratis parkering direkt framför huset – Chalet Leßner är den perfekta platsen för familjer eller vänner som söker avkoppling och komfort.
Layout:
Bottenvåningen: (öppet kök(vattenkokare, spis(Spis med 4 kokplattor, induktion), kaffebryggare(kaffetratt), ugn, diskmaskin, kyl och frys, Wine glasses), ardags- och matrum(TV, matbord, sitthörna, balkong eller terrass), sovrum(dubbelsäng), sovrum(enkelsäng, dubbelsäng), badrum(dusch), WC) På våning 1: (öppet kök(vattenkokare, spis(Spis med 4 kokplattor, induktion), kaffebryggare(kaffetratt), Espressobrygga, ugn, diskmaskin, kyl och frys), ardags- och matrum(TV, matbord, öppen spis, sitthörna, stereo, balkong), sovrum(dubbelsäng), badrum(badkar, handfat, handfat, private infrared cabin, toalett )) skidförvaring(pjäxvärmare), tvättmaskin, terrass, trädgård, cykelförvaring, trädgårdsmöbler, grill, parkering
Notera:
På av lugn och ro, hyrs denna semesterbostad inte ut till ungdomsgrupper Det är absolut förbjudet att anordna studentfester, möhippor, svensexor eller fyllefester i huset
Faciliteter
-
Allmän information
-
Badkar
-
Boyta140 m²
-
Diskmaskin
-
Eget hus
-
Fridge
-
Hårtork
-
Kettle
-
Köksredskap
-
Matbord
-
Private entrance
-
Trädgård
-
TV
-
Tvättmaskin
-
Ugn
-
Vinglas
-
WiFi
-
-
Andra
-
Balkong
-
Balkong eller terrass
-
Cykelförvaring
-
Pjäxvärmare
-
Privat infraröd kabin
-
-
Building status
-
Detached
-
-
Distance
-
Centre3 km
-
CrossCountrySkiing500 m
-
Flygplats44 km
-
Golfcourse10 km
-
Mataffär2,5 km
-
PublicSwimmingPool3,5 km
-
Restaurants1,5 km
-
Shopping2 km
-
Sjö4 km
-
Skiarea4 km
-
-
Fritidsaktiviteter
-
Bergsbestigning
-
Bergscykling
-
Cykling
-
Golf
-
Gående
-
Skiing
-
Vandring
-
-
Home safety
-
Smoke detector
-
Övervakningskamera
-
-
Jultema
-
Bort från allt
-
Skiing
-
Stadssemester
-
Vinter sol
-
-
Köksartiklar
-
Dishwasher
-
Espressomaskin
-
KaffemaskinFiltrera
-
Kyl frys
-
Spis4 kokplattor, induktion
-
Ugn
-
Vatten kokare
-
Vinglas
-
-
Rumsartiklar
-
Matbord
-
Sittgrupp
-
Stereoanläggning
-
TV
-
Öppen spis
-
-
Runt huset
-
Barbeque
-
Parkering
-
Terrass
-
Trädgård
-
Trädgårdsmöbler
-
-
Situation
-
Lantlig
-
På landet
-
-
Typ
-
Chalet
-
-
Vilket av följande beskriver bäst...
-
Fjäll
-
Lantlig
-
-
VVS / Tvätt
-
Badkar
-
DUSCH
-
Toalett
-
Tvättmaskin
-
Tvättställ
-
Kort semester
Det finns möjlighet för en minisemester under hela året.
Priser och kalender
Kalender
Varaktighet
Personer
Pris
Period
- Ankomst
- Avresa
- Varaktighet
- 1 vecka
Personer
Inga personer tillåtna
Please notice
Ankomst har inte valts.
Personer har inte valts.